
MIL-DTL-13714F
4.3.2 Second initial production vehicle inspection. One additional vehicle (see 4.3) from
the first month's production, or the first 20 produced, will be subjected to the initial production
test.
4.3.2.1 Initial production test. To determine conformance to Section 3 (inclusive),
vehicles will be examined as specified in 4.5.2, and tested as specified in table III. Subsequently,
both vehicles will be road tested for 3000 miles (4827 km) , as specified in table II. Inspection
will be performed by the Government, and will require no more than 90 days.
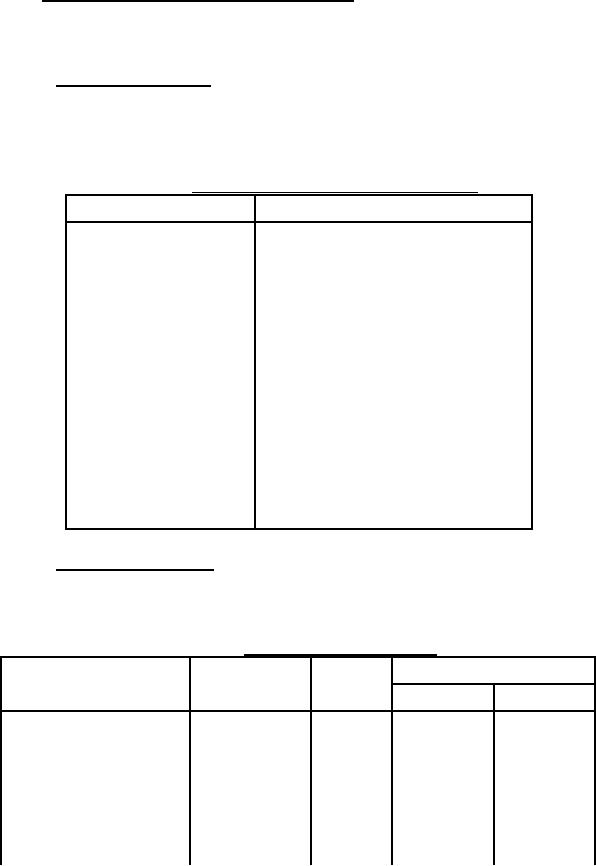
TABLE II. 3000 mile test, loaded (proving ground).
Course
Mileage and speeds
Hard-surfaced roads
1200 miles (1930 km) at varying
speeds up to maximum
Gravel
240 miles (386 km) at varying
speeds up to maximum
Level cross-country
1000 miles (1609 km) at varying
speeds up to maximum
Hilly cross-country
500 miles (804 km) at varying
speeds up to maximum
Belgian block
60 miles (96 km) at varying speeds
applicable to trailer characteristics
4.3.2.2 Reliability verification. To determine conformance to 3.5 and 3.5.1, reliability
shall be verified while vehicles are subjected to 3000 miles (4827 km) initial production road test
(see 4.3.2.1).
TABLE III. Classification of inspection.
First
Conformance
Title
Requirement
article Acceptance Comparison
Seals
3.3.1
4.4.1
4.4.1
Electrical circuits
3.3.2
4.4.2
4.4.2
Lighting system
3.3.3
4.4.3
4.4.3
Adjustment mechanisms 3.3.4
4.4.4
4.4.4
Environmental
3.4.1
4.4.5
4.4.5
Payload and speeds
3.4.2
4.4.6
4.4.6
4.4.6
8
For Parts Inquires call Parts Hangar, Inc (727) 493-0744
© Copyright 2015 Integrated Publishing, Inc.
A Service Disabled Veteran Owned Small Business