
MIL-PRF-62272C(AT)
(Application for copies should be addressed to the Tire and Rim Association, Inc.,
175 Montrose West Ave., Suite 150, Copley, OH 44321.)
2.4 Order of precedence. In the event of a conflict between the text of this document and
the references cited herein, the text of this document takes precedence. Nothing in this document,
however, supersedes applicable laws and regulations unless a specific exemption has been
obtained.
3. REQUIREMENTS
3.1 First article. When specified (see 6.2), a sample shall be subjected to first article
inspection in accordance with 4.2.
3.2 Life cycle operations. The durability and maintainability requirements shall be
demonstrated over the life cycle operations of the semitrailer when operated for a total of
12 000 miles (mi.) [19 300 kilometers (km)] per vehicle in accordance with the operational profile
in table I, the payload requirement of 3.2.1, and the environmental conditions of 3.2.2 (see 4.5.1).
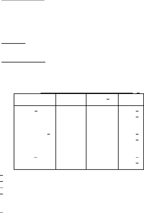
TABLE I. Operational profile, 12 000 mi. (19 300 km). 1/
Distance
Speed 2/
Loading
Course
mi. (km)
mph (km/h)
condition
Highway 3/
1400 (2255)
up to 55 (88)
loaded 4/
loaded 5/
1400 (2255)
up to 55 (88)
empty
200 (320)
up to 55 (88)
loaded 4/
Secondary road 3/
3300 (5310)
up to 20 (32)
loaded 5/
3300 (5310)
up to 20 (32)
empty
600 (966)
up to 20 (32)
loaded 4/
Off-road 3/
800 (1288)
up to 10 (16)
loaded 5/
800 (1288)
up to 10 (16)
empty
200 (320)
up to 10 (16)
1/
The side slope for all courses shall be not more than 20 percent (%).
2/
mph (km/h) = miles per hour (kilometers per hour).
3/
Definitions and examples of above courses are specified in 6.3.
4/
The payload shall consist of two 10-foot (ft) [3.1 meter (m)] or one 20-ft (6.1 m)
container with its center of gravity approximately 48 inches (in.) [122 centimeters
(cm)] and with a total load of 44 800 pounds (lb) [20 300 kilograms (kg)].
5/ The payload shall consist of breakbulk cargo evenly distributed total load of
45 000 lb (20 400 kg).
5
For Parts Inquires call Parts Hangar, Inc (727) 493-0744
© Copyright 2015 Integrated Publishing, Inc.
A Service Disabled Veteran Owned Small Business